Energiezuinig nieuwbouwappartement met 2 slaapkamers en een groot, zonnig terras. Het appartement is gelegen op de eerste verdieping vlakbij het centrum van Hamont. Supermarkt, treinstation, bushalte, huisarts, brasserie liggen op wandelafstand.
Gelijkvloers: private inkomhal.
Eerste verdieping: ruime woonkamer met een open keuken. De moderne keuken is voorzien van een inductiekookplaat, dampkap, spoelbak, afwasmachine, koelkast en combi-oven. Vanuit de keuken heb je via een schuifraam toegang tot een groot zonnig terras (22m²). Berging met uitgietbak en aansluiting wasmachine. Apart toilet.
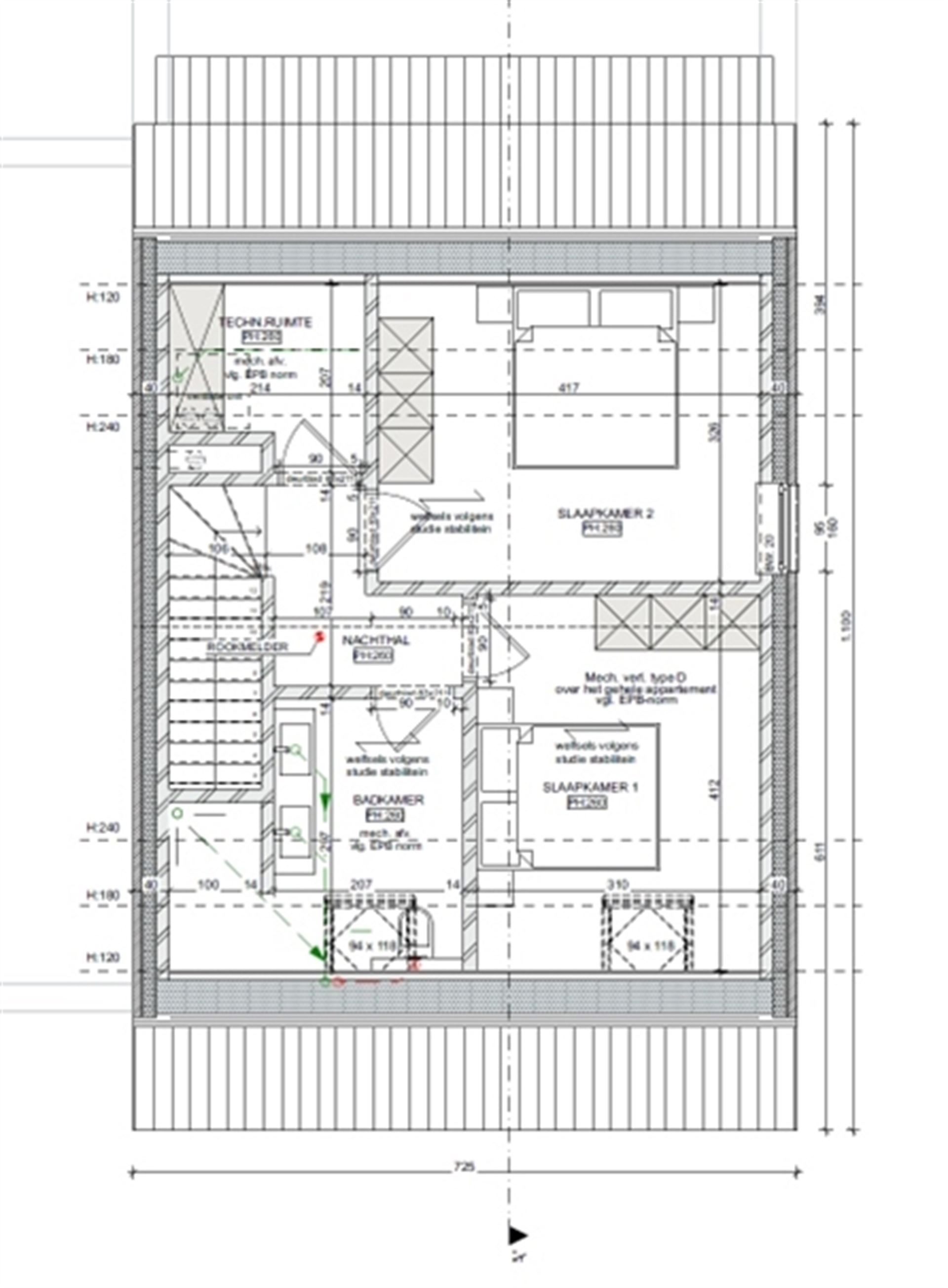
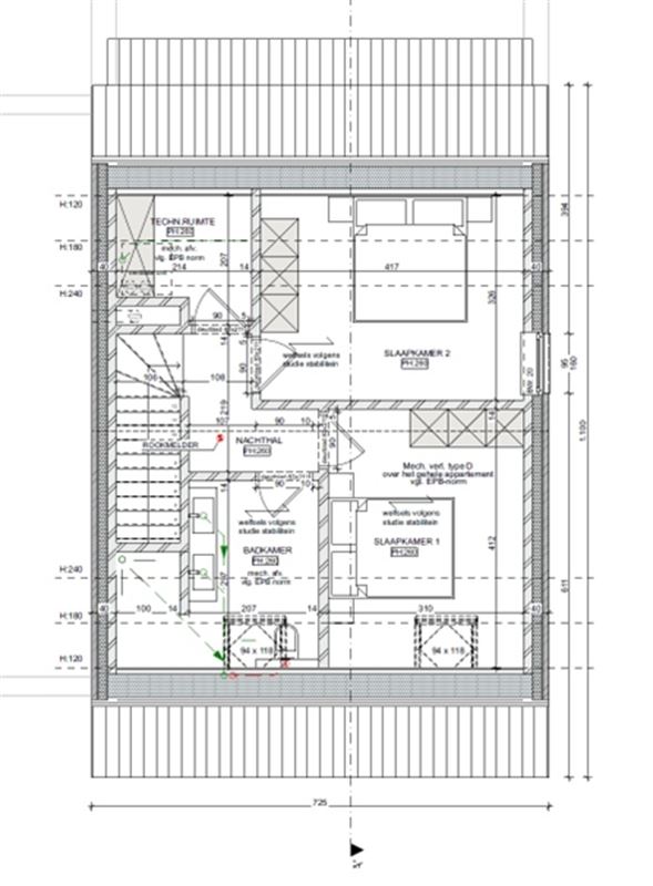
Tweede verdieping: Twee ruime slaapkamers (13m²). Mooie badkamer met inloopdouche, toilet en lavabomeubel. Technische ruimte.
Buiten beschikt het appartement over een autostaanplaats.
Troeven:
- Nieuw appartement: eerste bewoning
- Gunstige ligging
- Verwarming d.m.v. wartepomp
- Prachtig zonnig terras
Huurvoorwaarden:
- 3 maanden waarborg
- geen gemeenschappelijke kosten
- Onmiddellijk beschikbaar
