Opvallend ruime woning met 5 slaapkamers. De woning is gelegen nabij kleuter, lagere en middelbare school.
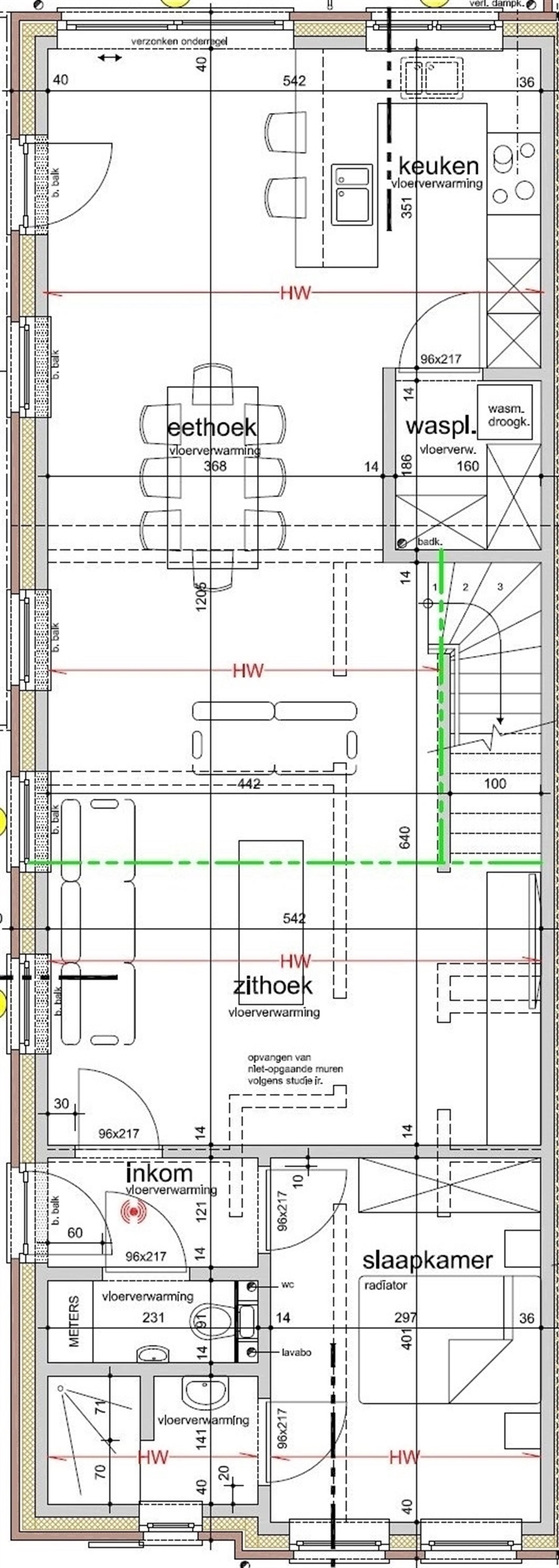
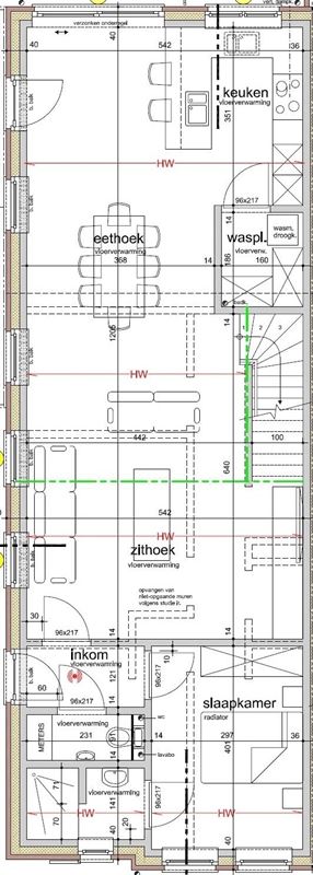
Indeling: inkomhal met gastentoilet, ruime woonkamer bestaande uit zit- en eethoek, open keuken voorzien van keramische kookplaat, dampkap, spoelbak, koelkast, combi-oven en afwasmachine. Aanpalend aan de keuken is er een berging/wasruimte. Slaapkamer (11m²) met doucheruimte.
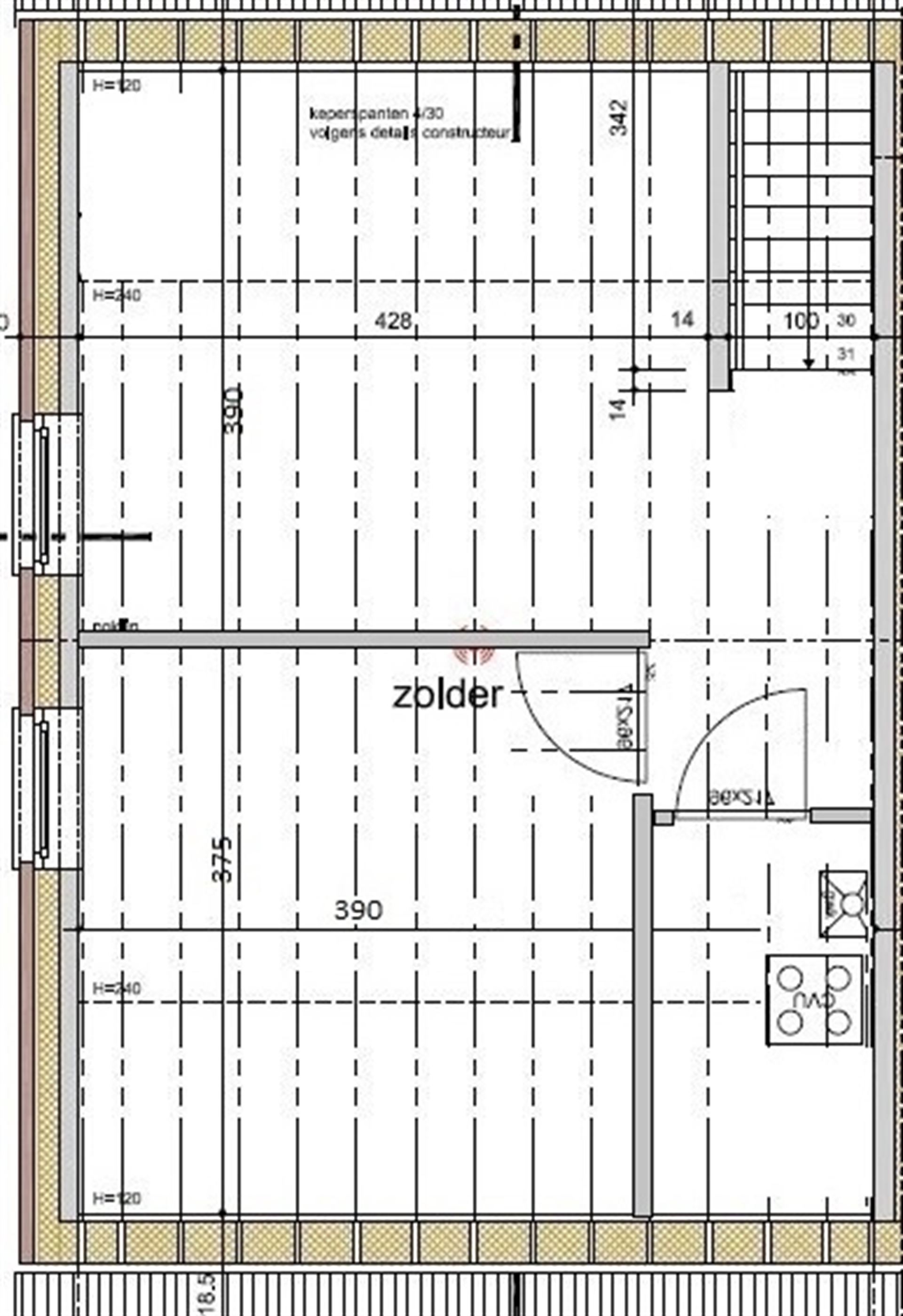
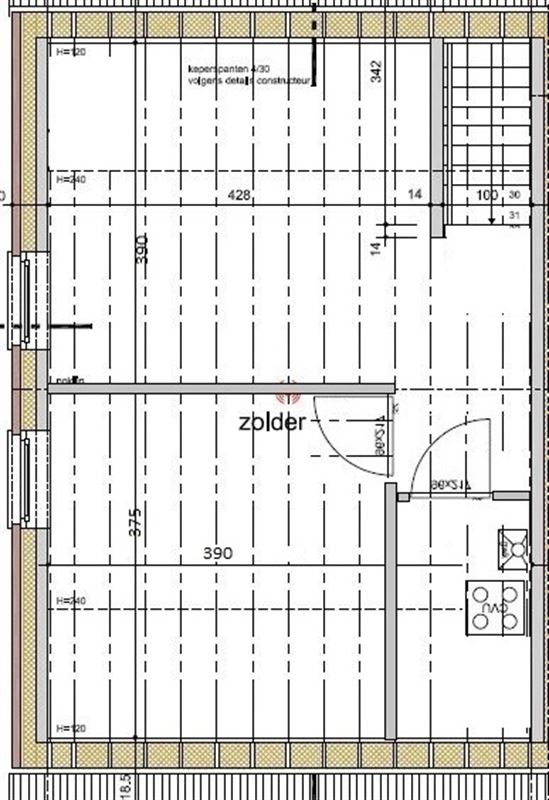
Op de eerste verdieping zijn er 3 ruime slaapkamers van respectievelijk 12m², 12,50m² en 7m², overloop, toilet en badkamer met douche en dubbele lavabo. Op de zolderverdieping is er een open (bureau)ruimte en een (vijfde slaap-) kamer. Technische ruimte.
Buiten beschikt de woning over volledig afgesloten tuin met verhard terras, tuinberging en carport.
Huurvoorwaarden:
- Beschikbaar vanaf 1 januari 2026
- 3 maanden huurwaarborg
